Villa Bukit Naga, Piscine au coucher du soleil
Villa Bukit Naga, Suite Master

Villa Bukit Naga

Ubud
6 Chambres
12 Personnes maximum
$1300 - $1700
  • 2 piscines à debordement
  • Quelques minutes à Ubud
  • Vue sur le volcan et la vallée d'Ubud
  • Une salle de fitness
  • Villa parfaite pour familles ou groupe d'amis

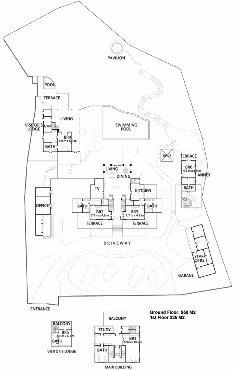
La Villa Bukit Naga est une propriété unique perchée au sommet d’une colline près d’Ubud, surplombant une vallée où se rejoignent deux rivières sacrées. Le domaine de Bukit Naga comprend 7 chambres réparties dans 3 élégants bâtiments et peut accueillir jusqu'à 13 personnes dans un cadre luxueux et raffiné. La Villa Bukit Naga possède le ratio personnel-invité le plus élevé de toutes les villas privées à Bali : 15 employés à temps plein pour un maximum de 13 invités. Grâce à son intimité absolue, elle est l’une des villas de location de vacances préférées des célébrités et des leaders de l’industrie. Elle ne figure pas sur les systèmes de positionnement par satellite, ce qui signifie qu'elle ne peut être trouvée ni sur Google Earth ni sur les GPS.

15 membres du personnel seront à votre service pour répondre à tous vos besoins. Deux chefs préparent des plats internationaux ou spécialisés, allant des mets occidentaux aux délicieuses recettes asiatiques, en utilisant des produits biologiques issus du potager de la villa. Deux chauffeurs sont à disposition pour vous emmener des montagnes aux plages, afin que vous puissiez profiter de randonnées volcaniques, excursions de surf, moments de détente sur le sable, mais aussi pratiquer le golf, le vélo ou découvrir les villages balinais intemporels.

Profitez de cours de cuisine, de séances de yoga, de massages et d’autres soins de spa dans l’intimité de la Villa Bukit Naga.

Le domaine entier bénéficie du Wi-Fi, disponible dans chaque pièce ainsi qu’au bord de la piscine.

La propriété comprend 3 villas, totalisant 7 chambres (dont 6 avec salle de bain attenante), une piscine à débordement de 15 mètres, un bassin de relaxation à débordement, une salle de sport, une connexion Wi-Fi, une salle de divertissement avec télévision satellite et une bibliothèque de plus de 600 DVD, une climatisation centrale, un total de 5 bâtiments, 2 bales extérieurs, 4 douches extérieures privées, un jacuzzi, 5 balcons, divers systèmes sonores et stations d’accueil pour iPod, ainsi que des jardins luxuriants.

EMPLACEMENT

Bukit Naga est situé à quelques minutes d'Ubud, la capitale culturelle de Bali. Les invités peuvent profiter d’une gastronomie de classe mondiale directement à la villa ou dans des restaurants primés tels que Mozaic. Notre concierge sur place pourra organiser des excursions shopping, des visites de galeries d’art et de musées, ainsi que bien d’autres activités.


Rating Moyen sur 3 Ans basé sur  4  témoignages clients:  4.5  /  5

Témoignages de clients récents de Bali Luxury Villas:

 rented  Villa Bukit Naga  

" MANY THANKS "
We'd like to let you know that we had a fabulous 4-day stay at Villa Bukit Naga. On behalf of Ms Florentino and our friends, many thanks. Do extend our good wishes to Parta and his staff and the Villa owners. They've done a good job creating such a beautiful holiday setting. Who knows, we may have another opportunity for a visit.

 rented  Villa Bukit Naga  

" A HIDDEN GEM! "
Tucked away on the slopes of a river, the verdant surroundings of the Villa strikes you upon arrival. Lush vegetation, with no evidence of being overly manicured gives the estate the feel of being set in nature. There is a charm about the villa, it feels like home! The rooms are clean and bathrooms are enormous! One needs to get used to the choir of nature... birds, frogs, geckos 'singing' continuously in the background. Food is sumptuous. A trio of chefs manage the kitchen that is well fitted with industrial standard equipment. Freshly made bread & croissants for breakfast; eggs done anyway you like; rijstafel dinner; western meals that can rival a top class restaurant. The list goes on. It is the perfect base to rest and revitalize oneself after exploring all the sights of bustling Ubud. A well chilled lemongrass drink ( home made, of course!) , an in- villa massage; a dip in the infinity pool and one should be ready for dinner with fine dining. Life does not get any better!

  Basse Saison Haute saison Saison de Pointe
6 Chambres $1,300 / Nuit $1,500 / Nuit $1,700 / Nuit
Séjour minimum 3 nuits 4 nuits 4 nuits

Les tarifs ci-dessus sont indiqués en US dollars par nuit et sont assujettis à 11% de taxes locales en sus. Les prix affichés sont valables jusqu'au 08 Janvier, 2027 AM.

DatesSeasons
09 Janvier, 202511 Avril, 2025Basse Saison
11 Avril, 202528 Avril, 2025Haute saison
28 Avril, 202515 Juin, 2025Basse Saison
15 Juin, 202501 Septembre, 2025Haute saison
01 Septembre, 202521 Décembre, 2025Basse Saison
21 Décembre, 202509 Janvier, 2026Saison de Pointe
09 Janvier, 202627 Mars, 2026Basse Saison
27 Mars, 202613 Avril, 2026Haute saison
13 Avril, 202615 Juin, 2026Basse Saison
15 Juin, 202622 Août, 2026Haute saison
Chambres climatisées
Cuisine bien équipée
Jacuzzi
Piscine privée
Stéréo et lecteur DVD
Idéale pour les mariages et événements
Salle de sport
Parking
Coffre-fort
TV satellite / câble
Service de sécurité 24 heures
Service de transfert aéroport - Des Conditions s'appliquent
Complimentary car for trip to Ubud
Petit-déjeuner quotidien
Food & Beverage service based on groceries at cost plus 35% surcharge
Villa avec personnel, y compris un chef privé, serveurs, jardiniers, pisciniste, technicien, sécurité
Internet WIFI
Rafraichissements de bienvenue et corbeille de fruits
Villa Bukit Naga Plan

(5.8 km) Un sanctuaire au cœur de l’Ubud traditionnel, la Villa Crystal Castle avec ses 7 chambres climatisées entourées de rizières est la villa de retraite parfaite à Bali, située dans un cadre magnifique à seulement 10 minutes en voiture du centre d’Ubud. La Villa Crystal Castle dispose d’une grande piscine de 18 x 5 mètres de taille comparable à celle d’un complexe hôtelier, d’un grand Yoga Shala, d’un Pavillon de Soins Spa, le tout niché dans un vaste ...

Simple & Pratique

Nous répondrons à toutes vos demandes par E-mail dans un délai de 24 heures. Vous pouvez également utiliser le chat integré à notre site, ou nous contacter par skype ou téléphone pendant les heures de bureau.

Nous acceptons les paiements par virement bancaire en USD$ (TT) ou par Visa & MasterCard.

Pour les demandes sur une villa en particulier, merci de vous adresser au Tarifs & Conditions sur la page de chaque villa. Pour les conditions générales de la procédure de réservation, merci de voir la page Termes & Procédures de Réservation .
Update Your Email and Personal Details
Update Visitor Numbers Details
 

30 minutes (13.9 km) en voiture de Cultural town of Ubud, 70 minutes (39.7 km) en voiture de Seminyak Night Life, 55 minutes (40.9 km) en voiture de Bali's Ngurah Rai International Airport.

Rafting
Restaurant
State Temple
Pura Dalem of Bitera
Pura Dalem
Goa Garba
Durga Statue
Silk Weaving of Gianyar
Basket Weaving in Bono
Javascript is required to view this map.