Вилла Coraffan, палубе бассейн
Вилла Coraffan, Недалеко от океана

Вилла Coraffan

Canggu
5 спальни
10 человек максимум
$850 - $999
  • В окружении рисовых полей
  • Бесконечный бассейн
  • Открыть гостиная с баром
  • Недалеко от знаменитого пляжа для серфинга место Echo
  • Полный рабочий день сотрудников и повар

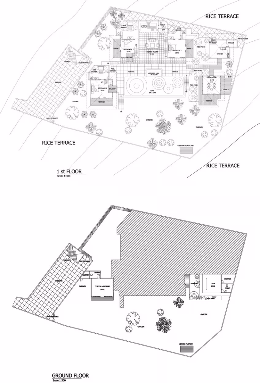
Вилла Coraffan в Чангу расположена вокруг бесконечного бассейна размером 5 на 17 метров. Из каждой из 5 спален виллы Coraffan открывается потрясающий вид. Для каждой комнаты были выбраны белые каменные стены из палиманана и богатые деревянные полы из мербау, чтобы объединить величественное спокойствие храма с земным теплом. Вилла Coraffan имеет гостиную на открытом воздухе, оборудованную баром. Другие общие зоны включают отдельную смотровую площадку, идеально подходящую для утренней медитации или йоги, и отдельную обеденную зону, окруженную балконами. Кондиционированная комната с телевизором в Coraffan имеет полноценную ванную комнату и может использоваться как пятая спальня. В Coraffan также есть полностью оборудованная кухня с помещениями для персонала и парковкой с постом охраны.

На вилле работает штатный персонал из 7 человек. Руководитель виллы г-жа Вайан Вети, шеф-повар г-н Путу, садовник/домработница г-н Кетут, домработницы г-жа Вивин и г-н Кадек, а также два охранника г-н Ньоман Судира и Ньоман Винду). При необходимости Coraffan может организовать няню. Наши домработницы обслуживают спальни каждое утро и поздний вечер. Большинство сотрудников говорят по-английски хотя бы на базовом уровне и имеют опыт работы в 5-звездочных отелях и на виллах. Персонал обычно работает по обычному графику, в любое время присутствуют не менее двух человек, хотя мы можем корректировать график в соответствии с потребностями наших гостей. Шеф-повар Coraffan, г-н Путу, готовил блюда в некоторых из самых известных западных ресторанов Бали, а также является экспертом в азиатской кухне.

Главная спальня

В главной спальне есть балкон по периметру, а также терраса в виде вороньего гнезда, откуда открывается вид на Индийский океан — идеальное место, чтобы выпить утренний кофе. В люксе также есть частично открытая ванная комната в стиле сада и уголок с телевизором. Комната может охлаждаться либо кондиционером, либо потолочным вентилятором.

Спальня 2

Во второй спальне есть просторная, частично открытая ванная комната и балкон с видом на пруд с рыбами в стиле дзен в Кораффане. Комната охлаждается кондиционером.

Спальня 3

В третьей спальне есть терраса в виде вороньего гнезда, с видом на частный сад. Номер охлаждается кондиционером.

Спальня 4

В четвертой спальне есть балкон с 180-градусным видом на рисовые поля Чангу и терраса «воронье гнездо» с видом на всю собственность, а также на окружающие террасные земли. В этой спальне есть просторная ванная комната в стиле сада. Номер может охлаждаться кондиционером или потолочным вентилятором.

Спальня 5

В пятой спальне две односпальные кровати. Из этого люкса открывается вид на сад и пруд с рыбами Coraffan. Номер охлаждается кондиционером.

Гостиная

Открытая гостиная Coraffan позволяет гостям растянуться в тени, охлаждаемой вентилятором, у бассейна. К закату комната обретает свою индивидуальность благодаря теплому текстурированному освещению и бару, который поможет начать вечерние развлечения.

Столовая

Столовая, которая может быть открыта стихиям по вашему желанию, предоставляет гостям достойную обстановку для дополнения кулинарных изысков нашего шеф-повара. Балконы с трех сторон столовой позволяют гостям собираться до и/или после каждого приема пищи, чтобы потягивать коктейли и общаться под звездами.

Медиа-комната

ТВ-комната Coraffan предлагает гостям прохладный и уединенный отдых от солнца, подходящий для серфинга в Интернете, просмотра DVD на нашем 42-дюймовом плазменном телевизоре или просто для чтения романа. В этой комнате есть полноценная ванная комната, что дает гостям возможность превратить ее в шестую спальню, что может сделать наш персонал, установив наши две переносные односпальные кровати.

Вилла Coraffan расположена недалеко от захватывающего Семиньяка.


Средняя оценка на основе  2  отзывов гостей:  4.3  /  5

Отзывы недавних гостей:

 rented  Villa Casa Coraffan  

" LIFE IS A BOOK "
People say "Life is a book. Those who don't travel only read the first page". Villa Coraffan's Staff made us feel like the chapter is complete. Thank-you !

  Низкий Сезон Высокий Сезон Пиковый Сезон
5 спальни $850 / ночь $975 / ночь $999 / ночь
Минимальное количество ночей 2 ночей 5 ночей 7 ночей

Цены указаны в долларах США за ночь и не включают сервисный сбор и государственный налог  5%. Цены действуют до 11 Марта, 2025 до полудня .

DatesSeasons
03 Января, 202515 Января, 2027Низкий Сезон
Спальни с кондиционером
Современная архитектура и дизайн
Полностью оборудованная кухня
Парковка
Сейф
ТВ спутниковое / кабельное
Детская кроватка и высокий стул
Идеально подходит для проведения свадеб и других мероприятий
Игровая комната и ТВ/видео
Частный бассейн
Стерео & DVD-плеер
Трансфер из аэропорта - Условия применяются
Ежедневно завтрак
Cлужба покупки еды / Напитков основана на стоимости бакалеи
Полностью укомплектован в том числе частным поваром, обслуживающым персоналом, садовником, техником, охраннa
Служба безопасности в ночное время
Интернет WI-FI
Приветственные напитки и Корзина с фруктами
Вилла Coraffan Схема виллы

(2.7 km) Вилла Damai — это элегантная современная роскошная вилла с 5 спальнями, спрятанная в зеленой деревне Кувум в Умаласе, между Семиньяком и Чангу. Недавно завершенная вилла Damai, построенная на 1800 квадратных метрах земли, с частным 22-метровым плавательным бассейном, ...

(0.9 km) Вилла Paloma c 5 спальнями и шикарным бассейном идеально подходит аренды на отпуск для семей и особых случаев. Традиционный дизайн, большой тропический сад и удачное расположение: вблизи тихой деревни, недалеко от Семиньяка, всего в 800 метрах от пляжа.

(1.7 km) Вилла Mata Air с четырьмя спальнями отличается современным убранством. Она уникально расположена близ одного из изгибов русла Панджи в регионе Переренан-Чангу, на расстоянии 25-минутной поездки от Семиньяка. Всего лишь за 5 минут от виллы можно добраться до ставшего ...

ПРОСТО И УДОБНО

Чтобы заказать виллу, лучше всего связаться с нами по электронной почте. Мы отвечаем на большинство запросов в течении суток. Помимо этого в наши рабочие часы вы можете связаться с нами в режиме онлайн через специальный чат на нашем сайте, через skype или по телефону. Мы всегда постараемся ответить на ваш запрос как можно скорее: в течение 24 часов в рабочие дни или в понедельник в том случае, если запрос отправлен в выходные.

Мы принимаем оплату карточками Visa и MasterCard,
а также банковскими переводами в долларах США (TT).

Для запросов по конкретной вилле, пожалуйста прочитайте Условия Договора в разделе "Цены&Сезоны" на странице интересующей Вас виллы. Для ознакомления с нашей стандартной процедурой бронирования, пожалуйста прочитайте Условия Оформления Брони на странице Процедура Бронирования .
Update Your Email and Personal Details
Update Visitor Numbers Details
 

30 минут (10.7 км) на машине до Seminyak Center, 30 минут (11 км) на машине до Seminyak Night Life, 45 минут (18.6 км) на машине до Bali's Ngurah Rai International Airport.

Рестораны
Верховая езда
Пляж для серфинга
NightLife
Ночная жизнь
Семейные
Pura Petitenget
Tanah Lot Temple
Kuta Art Market
Javascript is required to view this map.